|
不锈钢内进流网板格栅除污机非金属回转式内进流格栅格栅除污机厂
收藏
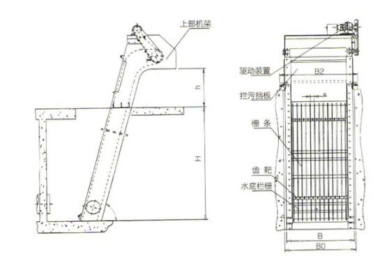
产品简介 内进流格栅是一种将拦污和除污结合于一体的高效细格栅除污设备。适用于大、中、小型泵站作为精细格栅,拦截、清除水中的漂浮物,如:杂草、纸片、烟头、瓜子、纤维、毛发等,该机型具有很高的污物捕获率,可保持后续处理工艺的有效实施。 产品原理 内进流网板细格栅自机架、驱动系统、网板系统、反冲洗系统、除渣系统及电控系统六大部分组成。减速电机驱动链轮转动,链轮带动网板连续回转;污水从进水口进入格栅,经网板过滤,滤后水流向网板外侧,污物被截留在同板内表面,随着网板连续回转带至顶部;反冲洗系统冲洗洗板外侧,在冲洗水作用下污物被冲洗到收渣槽,并随着冲洗水一起流出排污口。 产品结构图
安装准备工作 1、设备基础工程验收 (1)设备基础的位置、几何尺寸要符合施工图纸;施工质量要求要符合现行标准《混凝土结构工程施工质量验收规范》的规定;要有验收资料和施工记录。在设备安装前,应按规范中的允许偏差对设备基础位置和几何尺寸进行复检。 (2)设备基础表面的碎石、泥土、积水等均清除干净;放置垫铁部位的表面应平整。 (3)需要预压的基础,应预压合格并应有预压沉降记录。 2、设备开箱验收 (1)设备开箱应按下列要求进行检查,并应作出记录: 箱号、箱数以及包装情况;设备的名称、型号和规格;装箱清单、设备技术文件、资料及专甩工具;设备有无缺损件,表面有无损坏和锈蚀等;其他需要记录的情况。 (2)设备及其零、部件和专用工具,均应妥善保管,不得使其变形、损坏、锈蚀、错乱或丢失。 3、设备安装前的条件: (1)对运输道路、水源、电源、照明、消防设施、主要材料和机具及劳动力等,应有充分准备,并做出合理安排。 (2)安装施工地点及附近的建筑材料、泥土、杂物等,应清除干净。 (3)当设备安装工序中有温度、湿度、防震、防尘或防辐射等要求时,应在安装地点采取相应的措施后,方可进行相应工序的施工。 (4)利用建筑结构作为起吊、搬运设备的承力点时,应对结构的承载力进行核算,必要时应经设计单位的同意,方可利用。 (5)设备就位前,按施工图和有关建筑物的轴线或边缘线及标高线,划定安装基础线。 (6)固定膨胀螺栓拧紧螺母后,螺栓应露出螺母,露出的长度宜为螺栓直径的l/3~2/3。 安装要点 为设备性能要求,安装调试过程中控制各零部件质量精度的同时,安装传动系统主体部分的机架平台应在组焊后进行整体机架加工,以提高传动系统的装配精度。 |



