|
阶梯式格栅机 阶梯式细格栅机 网板式阶梯细格栅除污机捞污机设备
收藏
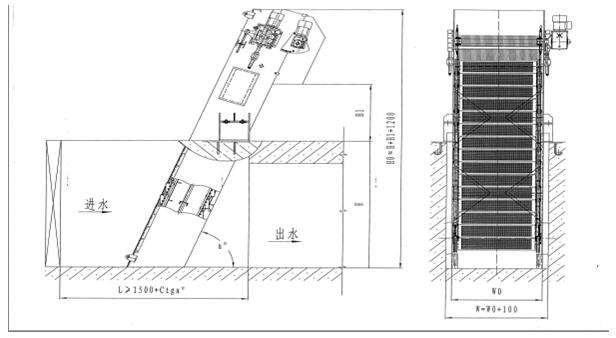
产品简介 阶梯式格栅主要由动格栅、静格栅、动力及传动装置、电气控制系统四部分组成,动、静格栅为锯齿形状交替布置,通过传动机构驱动动格栅做偏心回转运动。将污物从静格栅的一个台阶送到上一个台阶,直至到格栅顶部落入接污槽内。 产品特点 (1)有一定的自净能力,运动平稳、无噪声; (2)无堵塞现象,很适宜制作间距1~10mm的细阶梯式格栅,实际生产中采用10~20mm的中粗阶梯式格栅效果也很满意; (3)由于耙齿弯钩的承托,截留的污物不会下坠,到顶部翻转时,又易于把污物卸除; (4)自动化程度、分离效率、动力消耗小、耐腐蚀性能好,在无人看管的情况下可连续稳定工作,设置有过载保护装置。同时可根据需要任意调节设备运行间隔,实现周期性运转;也可根据格栅前后的液位差自动控制,并且有手动控制功能以方便检修,日常维修工作量很小。 产品结构 (1)驱动装置 阶梯式格栅的驱动装置位于机架上部,除传动装置外,其余均采用不锈钢材料制造。驱动装置采用轴装式减速机,在机架二侧设置螺旋式调节装置,以作调整传动链条张紧用。驱动电机适用于电源380V/三相/50Hz,防护等级为IP55,绝缘等级为F级,电机额定功率比大实耗功率大10%。具有过载保护装置。传动轴的设计具有足够的强度和刚度,以承受弯矩和扭矩同时作用的载荷。 (2)机架 整个格栅部件直接安装在渠道上,水中的固体物由网板串接成的滤带捕获,送至除污机驱动装置后部的较高位置后排出。同时一个旋转的刷子还对网板进一步清洁。网板式阶梯阶梯式格栅的机架为采用不锈钢板与型钢焊接成一整体式刚性结构,焊接后的清污机机架为一刚性整体,并具有足够的强度和刚度,在规定水位差的工况下不发生扭曲变形现象,机架材料全部采用不锈钢,二侧板间隔一定距离设置横撑,设备安全可靠运行。焊接后的格栅机架为一刚性整体,具有足够的强度和刚度,在1.0米水位差的工况下不发生扭曲变形现象。机架的两侧与格栅井之间留有间隙,通过机架的两侧橡胶封板来防止漂浮垃圾通过。机架二侧设置安装连接支座,与基础平台之间用膨胀螺栓安装固定。 (3)牵引链及链轮 用于传动的牵引链采用不锈钢制造,链具有足够的断面尺寸,牵引链破断强度不小于大牵引力的5倍。传动用的牵引链轮及导向装置(非链轮),分别置于机架两侧的上部和下部,水下导向装置的形式,在结构上有可靠的设施防止栅渣等污物的缠绕。导向装置是非链轮机构。 (4)网板 网板采用不锈钢制造,网面为规则排列的小孔。网面具有过水与截污的功能,台阶面能截留较大的污物。整个台阶式网板滤带面具有足够的过水通道,以过水面积和流量满足设计要求,污水通过栅隙流速小于1m/s。 (5)清洁刷 清洁刷设置于网板的回程的起点,由单独的减速电机驱动,在滤网运动的同时,对网板外表面进行助卸与清洗,清洗刷毛由尼龙材料制成。 (6)冲洗装置 阶梯式格栅配置孔板冲刷装置,以确保卸料后的回程孔板不粘附污物,消除对网孔的堵塞。 产品施工 1、熟悉及掌握阶梯式格栅安装要领,加强方案研究及技术交底,使施工人员掌握施工方法。 2、吊装阶梯式格栅前必须对起重机械设备的性能进行全面检查,并要严格检查各钢丝绳、吊索、千斤顶等工具的安全性。 3、水边作业必须配带安全带,危险面应设置安全网。 4、吊装时必须有专业人员统一指挥,并专人监护,发现问题后立即向现场总指挥反映。 5、阶梯式格栅在摘钩前,必须垫平放稳,以免倾倒伤人。 6、构件拼装摆放,必须垫平放稳;在可能滚动或滑动的物体前方不得站人。 7、在阶梯式格栅吊装到基础就位时,工作人员身体的任何部位不得探入其接合面,以防止轧、挤伤手。取放垫铁时,手指应放在垫铁的两侧。 产品结构图
|



